Parellada

Muy pronto se iniciará la comercialización de las viviendas, mediante reservas en preventa. Si estás intereasd@, coméntanoslo para apuntarte en la lista de espera. Previsión de finalización de la promoción: 1er. trimestre de 2027.

Vive la Historia. Disfruta el lujo

Restauramos una joya arquitectónica del s. XVII–XX para transformar este edificio en exclusivas viviendas de lujo, conservando sus detalles originales. Ubicado en c/ Parellada 59, Vilafranca del Penedés.

Ubicación del Proyecto

En el prestigioso centro de Vilafranca del Penedés, en una de las mejores calles peatonales de la ciudad, tenemos este proyecto que aportará 12 viviendas exclusivas, una de ellas de carácter premium con entrada independiente desde C/ de la Parellada 59, y el resto con entrada desde la C/ Muralla de Sant Magí.

Descripción del Proyecto

Resumen

Entre medianeras con patio trasero y cubierta de tejas árabes. Fachada simétrica con arcos carpanel y cornisas de piedra. Proyecto de rehabilitación que combina conservación arquitectónica y acabados de alta gama.

Historia

Los orígenes de esta casa se remontan a los siglos XVII–XVIII. En 1856 y 1932 se autorizaron reformas que han dejado huella en su fachada y estructura. Nuestra intervención recupera y realza esos elementos históricos para crear viviendas contemporáneas con alma.

Características Destacadas

Proyección

Viviendas Exclusivas Premium

Visualiza tu nuevo hogar

Este proyecto Parellada, dispondrá de 2 viviendas únicas de carácter premium, restauradas según los requisitos como patrimonio cultural, y que hará que vivir en la Parellada, en el centro de la ciudad, y con estos acabados de alta gama, sea solamente algo muy exclusivo.

Estos pisos son los denominados:
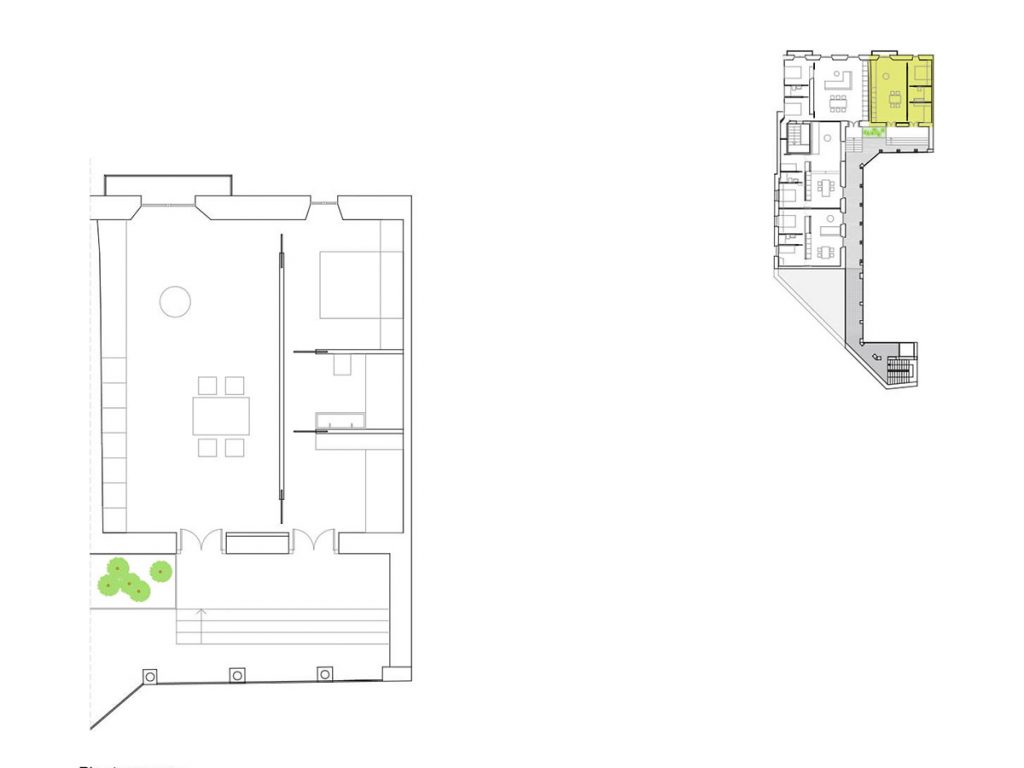
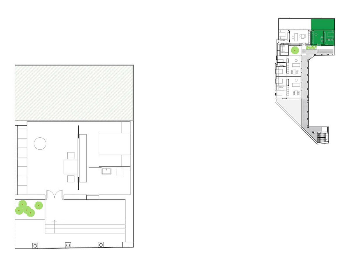
Premium 1 de 166 m²

Interiores con detalles originales y protegidos. Acceso por la escalera exclusiva y señorial desde el número 59 de la C/ de la Parellada y ascensor desde la C/ Muralla de Sant Magí.

(Con vistas a C/ Parellada y al jardín interior).

Unidades Disponibles

Descubre la vivienda que mejor se adapta a ti
NOTA: ESTOS PLANOS SON ILUSTRATIVOS DE LA PROMOCIÓN, A LA ESPERA DE LA CONFIRMACIÓN DEL PROYECTO DEFINITIVO.
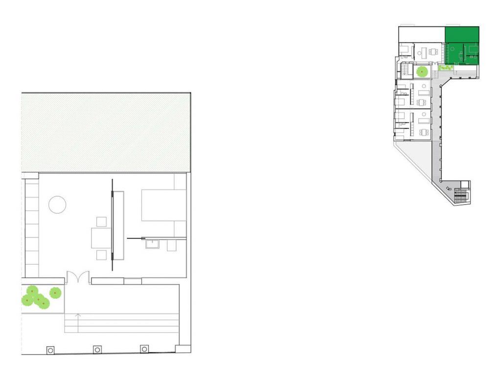
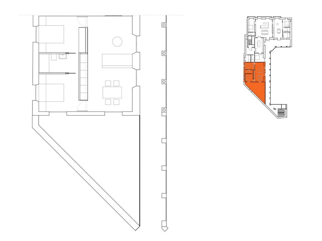
Piso Bajo – 90 m²

2 Hab, 1 baño y cocina comedor. Con jardín.

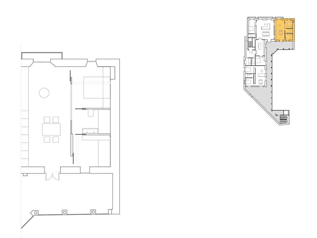
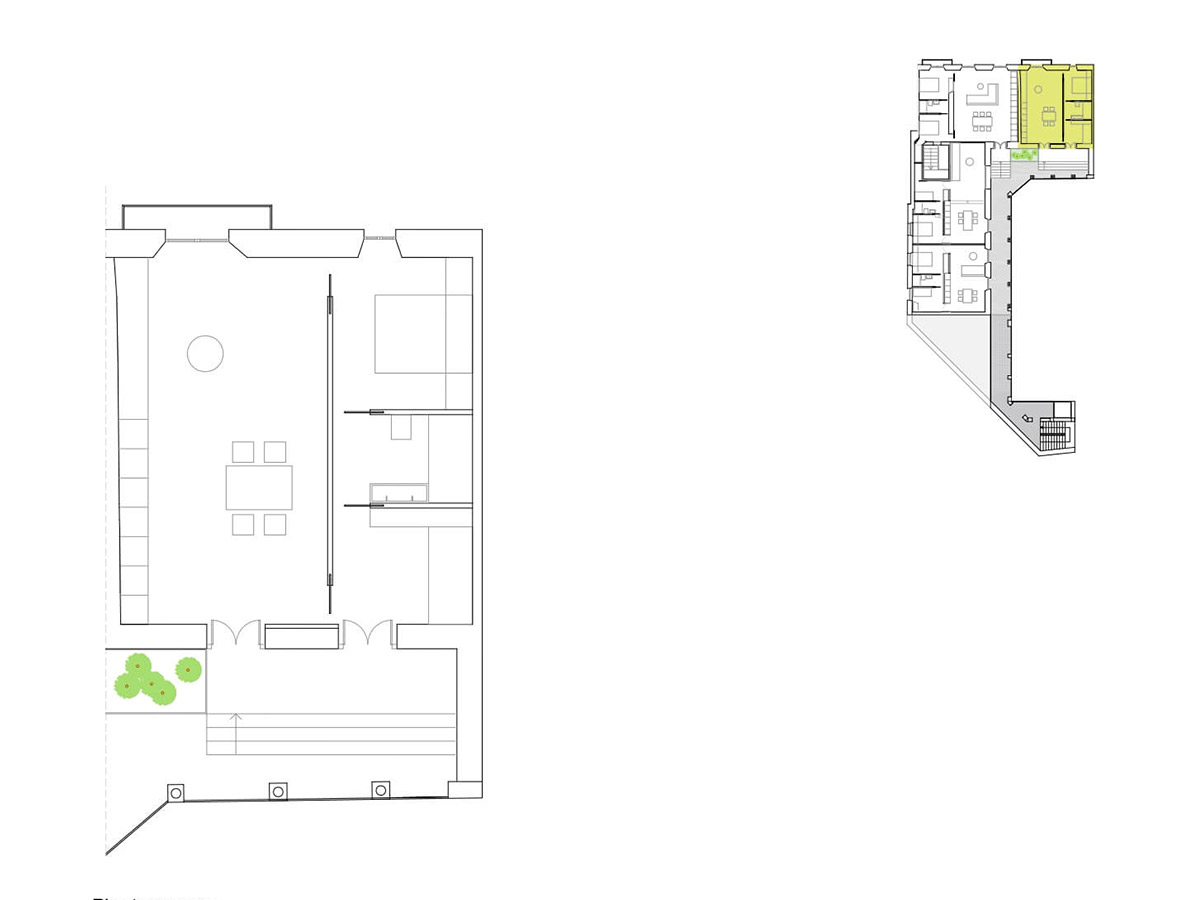
Premium 1: Piso 1º, puerta 1ª – 166 m²

3 Hab, 2 baño y cocina comedor. Con vistas a C/ Parellada y al jardín interior.

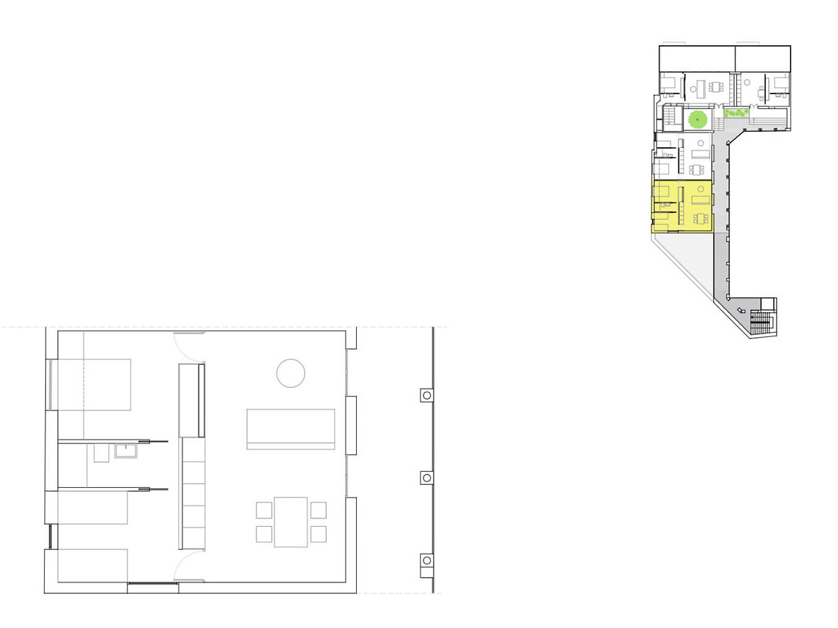
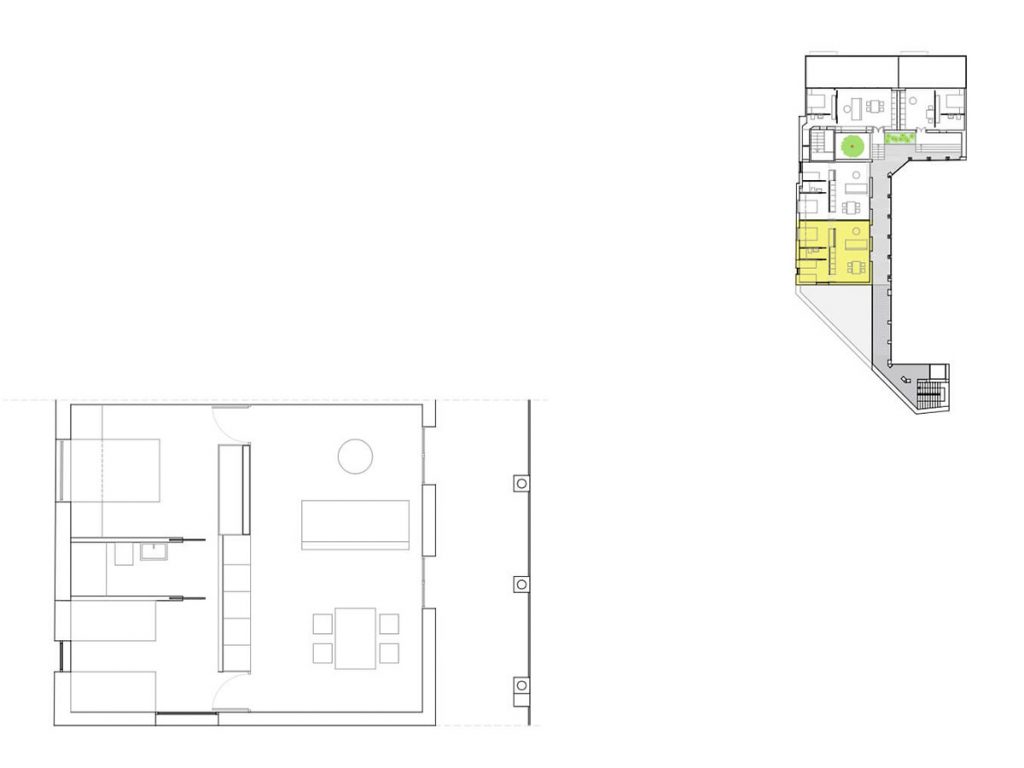
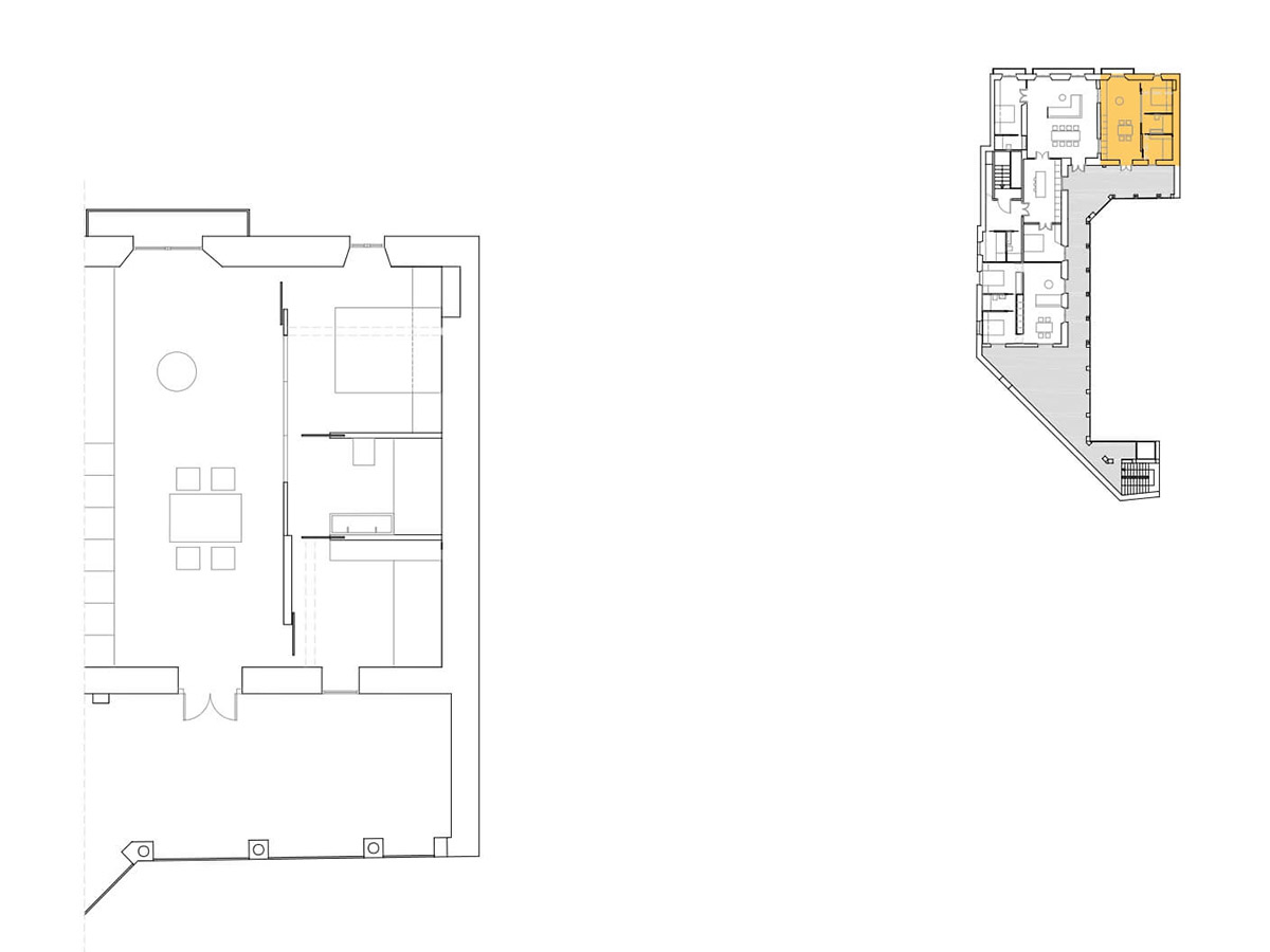
Premium 2: Piso 1º, puerta 2ª –60 m²

2 Hab, 1 baño y cocina comedor. Terraza de 35 m2. Con vistas a C/ Parellada y al jardín interior.

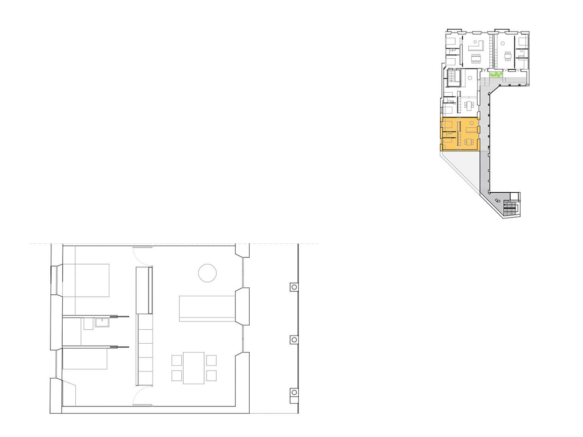
Piso 1º, puerta 3ª – 68 m²

2 Hab, 1 baño y cocina comedor. Terraza esquinera 39m². Con vistas a jardín interior.

Piso 2º, puerta 1ª– 88 m²

2 Hab, 1 baño y cocina comedor. Con vistas a C/ Parellada y al jardín interior.

Piso 2º, puerta 2ª – 66 m²

2 Hab, 1 baño y cocina comedor. Con vistas a C/ Parellada y al jardín interior.

Piso 2º, puerta 3ª – 75 m²

2 Hab, 1 baño y cocina comedor. Con vistas a jardín interior.

Piso 2º, puerta 4ª – 62 m²

2 Hab, 1 baño y cocina comedor. Con vistas a jardín interior.

Piso 3º, puerta 1ª – 81.5 m²

1 Hab, 1 baño y cocina comedor. Terraza de 37 m2. Con vistas a C/ Parellada y al jardín interior.

Piso 3º, puerta 2ª – 51.5 m²

1 Hab, 1 baño y cocina comedor. Terraza de 27 m2. Con vistas a C/ Parellada y al jardín interior.

Piso 3º, puerta 3ª – 59 m²

2 Hab, 1 baño y cocina comedor. Con vistas a jardín interior.

Piso 3º, puerta 4ª – 62 m²

2 Hab, 1 baño y cocina comedor. Con vistas a jardín interior.

¿Quieres conocer más sobre Parellada ?

Escríbenos o llámanos y te enviaremos todos los detalles de las viviendas disponibles.

Contáctanos